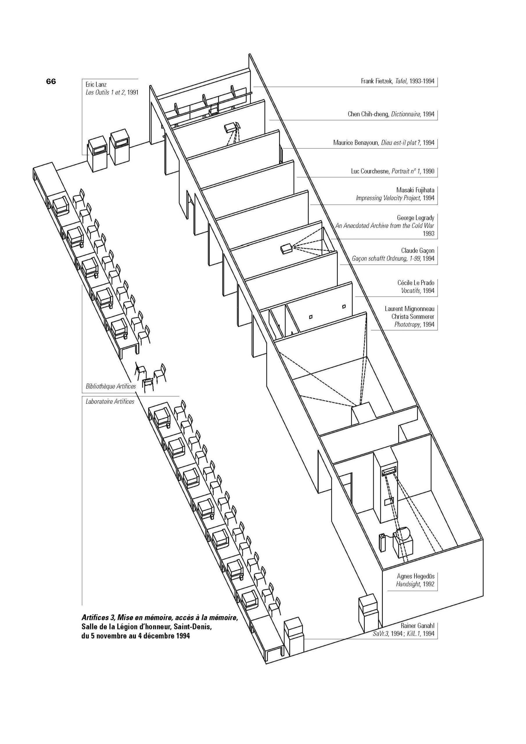
Plans des 4 éditions et artistes

Pages extraites du livre La relation comme forme, Mamco, Genève, 2003 et 2008, Presses du réel.